Wonen op de Tuin

In Boskoop tussen de straten A.P. van Neslaan, De Biezen, Sint Janshof en de Provincialeweg N207 ligt de kavel van de (voormalige) tuinderij van de heer Veerman. Hier ontstaat de komende jaren een hele nieuwe woonwijk. Er komt een nieuw appartementencomplex, waarin Woonforte 18 huurappartementen gaat verhuren. Op de plek waar vroeger een schooltje stond, komen 6 nieuwe eengezinswoningen. Ook de huurwoningen aan de A.P. van Neslaan nummers 8-46 worden meegenomen in dit nieuwbouwproject. Het bestaande woongebouw van Woonforte is aan vervanging toe en wordt gesloopt en vervangen door een nieuw gebouw. De bestaande huurders kunnen straks ook een thuis krijgen in de nieuwe woonwijk. 

Welke woningen komen er? 

  • 6 eengezinswoningen 
    - voor 3 of meer personen 
    - met 3 slaapkamers en een bergzolder 
  • 18 x 2- /3-kamerappartementen locatie Veerman
  • 40 x 2-/3-kamerappartementen locatie A.P. van Neslaan
    - waarvan 34 met balkon, 6 met Frans balkon

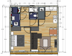
Over de appartementen

Alle woningen zijn te bereiken met een lift en zijn energiezuinig en comfortabel. Het nieuwe woongebouw bestaat uit drie verdiepingen en fietsenbergingen. Op de begane grond liggen twee- en driekamerwoningen met een terras. Op de eerste en tweede verdieping komen twee- of driekamerwoningen met twee ruime slaapkamers en een balkon. Bij zes woningen is dit een zogenoemd Frans balkon. Bij het gebouw komt ook een gemeenschappelijke tuin. Dit wordt een fijne plek om uw buren te ontmoeten.

Planning 

  • Medio 2026 start bouw van de eerste nieuwe woningen door aannemer Veerman. 
  • Medio 2027 verhuizen de eerste bewoners, huurders van Woonforte, naar hun nieuwe woning.
  • Eind 2028 moet het project volledig klaar zijn. Dan is de nieuwe woonwijk klaar en zijn de bewoners (weer) thuis!

Bovengenoemde planning is een indicatie en kan wijzigen. Als er wijzigingen zijn dan passen wij de genoemde data aan.

In oktober 2024 hebben wij samen met de gemeente Alphen aan den Rijn, de ontwikkelcombinatie Kroon & de Koning en Ruimtemaken onze handtekening gezet onder de anterieure overeenkomst voor de aankoop van de grond en het bestemmingsplan. 

Verhuur
De huidige 19 huurders van de A.P. van Neslaan krijgen voorrang op de nieuwbouwwoningen van Woonforte. Zij kiezen zelf of ze naar de nieuwbouw willen terugverhuizen of dat ze verhuizen naar een andere woning naar keuze. De huurwoningen die overblijven, worden in 2027/begin 2028 geadverteerd via Huren in Holland-Rijnland. 

Wilt u meer weten over dit project? Houd dan deze website in de gaten.